グランデスク コラム Vol.13

静けさと緑に包まれる
高台の邸宅地「渋谷区大山町」。
代々木上原駅徒歩7分に誕生する
新プロジェクト
〈ザ・パークハウス 代々木大山レジデンス〉

2023.6.23 FRI
ザ・パークハウス 広尾 外観完成予想CG

ザ・パークハウス 代々木大山レジデンス 外観(ノースヒル)完成予想CG

都心でありながら、低層の邸宅地として豊かな住環境が護り継がれている「渋谷区大山町」。今回は、代々木上原駅より徒歩約7分、四季の移り変わりが愉しめる代々木大山公園を望む高台に誕生する、敷地面積約8,000㎡超・全140邸の低層レジデンス〈ザ・パークハウス 代々木大山レジデンス〉をご紹介いたします。

時を超えて麗しき歳月を重ねる
都心に残された高台の邸宅地。

松濤、広尾、南平台など、いくつもの邸宅地が高台に存在する渋谷区。その中でも大山町は、標高約40m※1の高台に位置し、手入れの行き届いた庭のある邸宅や荘厳な門や塀に守られた瀟洒な低層邸宅が街並みを形成。昭和初期に大山園分譲地が開発されてから、住宅地として上質な歳月を積み重ねできたことを感じさせる風景が残されています。※2

現地周辺の住宅街

現地周辺の住宅街〈徒歩3分/約230m〉

代々木上原駅徒歩7分、
パークフロント&約8,000㎡超の敷地との出逢い。

私たちが巡り会うことができたのは、高台に残されていた約8,000㎡超もの広大な敷地。ここは、第一種低層住居専用地域が大半を占める大山町の中で、高さ12mまでの建築の開発が許されている第二種低層住居専用地域です。北側に「代々木大山公園」のパークビュー、南側に第一種低層住居専用地域の街並みが広がるこの地の価値を享受する邸宅を創造します。

現地周辺航空写真

現地周辺航空写真

代々木大山公園を望む敷地に、
新たな街の象徴となる
全140邸の低層レジデンスを描く。

〈ザ・パークハウス 代々木大山レジデンス〉は、大正時代より実業家や名士に愛されてきた渋谷区大山町に、新たな象徴となる邸宅として設計しています。目指したのは、街が培ってきた低層邸宅地としての歴史に呼応しながら、住まう方の感性を刺激する新たな時代を象徴する低層レジデンスです。この地だからこそ得られる「緑」や「空」との連続性を活かし、ガラスを多用したファサードをデザイン。全140邸の美しく壮大な邸宅風景を描きます。

ザ・パークハウス 代々木大山レジデンス 車寄せ完成予想CG

ザ・パークハウス 代々木大山レジデンス センタースクエア完成予想CG

新しい時代の日常を彩る、
居住性と美観性を高めた平均約92㎡の
プライベート空間の創造。

専有部は、住まう方の個性に馴染む空間を目指しました。奥行約3mのバルコニーの設置や、コンサバトリー付きプランなど、開放的な住まいをご用意。さらに、全戸個別設計変更対応※3とし、住まう方のライフスタイルに応える空間づくりを実現しています。

ザ・パークハウス 代々木大山レジデンス バルコニー完成予想CG/SCタイプ(000号室)

ザ・パークハウス 代々木大山レジデンス
バルコニー完成予想CG/S-85Aタイプ(524号室)

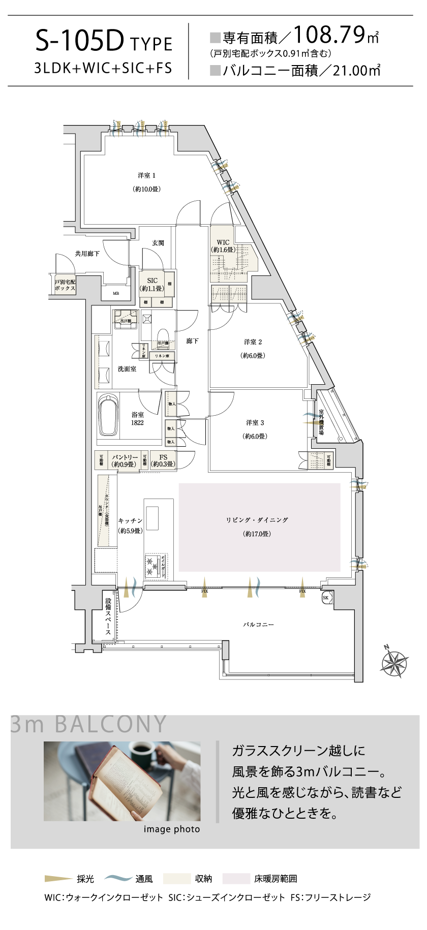
SPタイプ プラン図
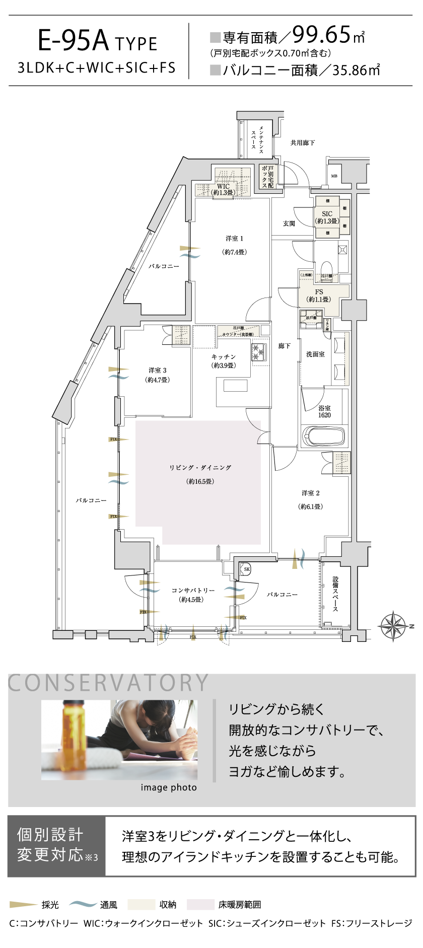
ECタイプ プラン図
現地案内図

〈ザ・パークハウス 代々木大山レジデンス〉は、2023年6月27日に公式物件ホームページをアップする予定です。
ご期待ください。
都心で静穏を護り継いできた高台の邸宅地に、私たちが長きにわたり培ってきたものづくりの思想を込めて創造する〈ザ・パークハウス 代々木大山レジデンス〉。
プロジェクトについて詳細案内をご希望のお客様は、是非GRAN DESKまでご連絡ください。

ザ・パークハウス 代々木大山レジデンス
【計画概要】

[所在地]
東京都渋谷区大山町1083-2他
[交通]
東京メトロ千代田線・小田急小田原線
「代々木上原」駅西口徒歩7分
[構造]
鉄筋コンクリート造 5階建
※建築基準法上は鉄筋コンクリート造
地上4階地下1階建
[建築確認対象面積]
8,002.73m²
※敷地面積については公式サイトをご確認ください。
※敷地面積については公式サイトをご確認ください。
[総戸数]
140戸 (募集対象外住戸7戸含む)
[専有面積]
63.05m²~153.13m²
[引渡可能年月]
2026年2月予定

※掲載の各完成予想CGは、計画段階の図面を基に描き起こしたもので、実際とは異なります。植栽は、特定の季節やご入居時の状態を想定して描かれたものではありません。周辺道路・建物等は簡略化しております。雨樋、エアコン室外機、給湯器、TVアンテナ等再現されていない設備機器等がございます。家具・照明器具・調度品等は、実際に設置されるものと異なる場合があります。
※1.出典:国土地理院ウェブサイト
※2.出典:発行/白根記念渋谷区郷土博物館・文学館「特別展 住まいからみた近・現代の渋谷ー郊外生活から都市生活へー」
※掲載の環境写真は2023年4月に撮影したものです。
※表示距離は現地からの地図上の概算です。徒歩分数は80mを1分として算出し、端数は切り上げております。所要時間はルートや交通事情により異なります。
※掲載の航空写真(2023年5月撮影)はCG加工を施したもので、実際とは異なります。
※掲載の敷地配置イメージイラストは計画段階の図面を基に描き起こしたもので、実際とは異なります。表現されている植栽部分はイメージであり、変更となる可能性があります。
※3.申込には期限がございます。
※掲載の間取り図は、計画段階の図面を基に描き起こしたもので、今後変更となる場合があります。予めご了承ください。
※記載事項は変更となる場合がございます。予めご了承ください。
※「ザ・パークハウス 代々木大山レジデンス」に関する計画概要は計画段階のものであり、変更になる場合があります。
※掲載のバルコニー完成予想CGは、計画段階の図面を基に描き起こした完成予想CGに、現地建築基準法上の4階相当より南西方向を2023年6月に撮影した写真を合成し、CG加工したもので実際とは異なります。また、家具・調度品等は販売価格に含まれておりません。