鴨川と東山の間、静穏が保たれた聖護院。
東山・大文字を望む地に誕生する新プロジェクト
〈(仮称)京都市左京区聖護院円頓美町計画〉
現地4階相当から東方向の眺望 東山・大文字を望む(2024年12月撮影)
西に瀬音さやかな鴨川、東に緑豊かな東山連山。北に歴史を刻む京都大学、南に平安神宮。
京都を象徴する景観と施設に囲まれた「聖護院」。知る人ぞ知る静穏な地に誕生する、全80邸の低層レジデンス(5階)〈(仮称)京都市左京区聖護院円頓美町計画〉をご紹介いたします。
緑の香ふくよかに。
心地よい時間が流れる「聖護院」。
鴨川と東山の狭間で、京の佳趣を愉しむポジション。
京阪鴨東線「神宮丸太町」駅から、東へ。東大路通を越えると、がらりと空気が変わります。かつては紅葉の名所「聖護院の森」が広がり、諸藩が藩邸を構える甍の波が美しい御屋敷町でした。今でもここ「聖護院」は、観光地化したエリアと一線を画す、静穏な空気に包まれた心地よい時間が流れています。
エリア概念イラスト
東山を借景にした庭園文化。
その風雅が息づく日常。
東山の裾野を覆う豊かな緑、四季折々の景に潤いを育む琵琶湖疏水。その緑と水が織りなす景勝の地に、古くから山容を借景にした別邸や庭園が創られました。本計画地は、東山の緩やかな傾斜地に繋がり、流れ来る緑風にも風雅を味わえる場所です。

紫雲の庭(金戎光明寺) 徒歩11分(約820m)

無鄰菴 徒歩18分(約1,370m)
多彩な文化や景観を傍らに。
疏水と緑に癒される散策路。
平安神宮の周辺は、京都市京セラ美術館や京都国立近代美術館、京都府立図書館など、文化施設が集積するアート&カルチャーゾーンです。また、東山の麓にある、琵琶湖疎水分線に続く「哲学の道」も身近な散歩道。春の桜、初夏の新緑、秋の紅葉など、季節を彩る表情もゆたか。野鳥の声も愉しめるその小径は、永観堂、南禅寺へも繋がります。

平安神宮 徒步11分(約860m)

哲学の道 徒歩23分(約1,790m)
平安時代が起源の聖護院。
京の文人墨客に愛された地。
平安時代後期、白河上皇の熊野参詣に案内役を務めた僧・増誉は寺院を賜り、その寺を「聖護院」と命名。寺の周辺は室町時代に集落が形成され、「聖護院村」となります。風趣にも恵まれ、後に紅葉の名所になり、また観梅とお茶を愉しむくつろぎ処にもなりました。そして、幕末。富岡鉄斎、大田垣蓮月、中島華陽をはじめ多くの文人墨客が住処とした聖護院村。鴨川の畔、東山を仰ぎ見るこの地は、文人墨客の創作欲を育むと共に、心を鎮める場所でもありました。
出典:「京都市1985年史料・京都市の歴史8巻左京区」
聖護院の緑と御屋敷町の気品を受け継ぐ、
全80邸の低層レジデンス(5階)。
伝統美が香る意匠。
現代の御屋敷をデザイン。
風格を醸し出す屋敷門と伝統的板塀の意匠を意識した修景壁が街並みに調和。在来種を中心とした植栽により「庭園空間と建築空間の内外融合」をテーマとして計画。住棟屋上には、居住者が東山・大文字を見晴らせるテラスを設けました。
外観完成予想CG
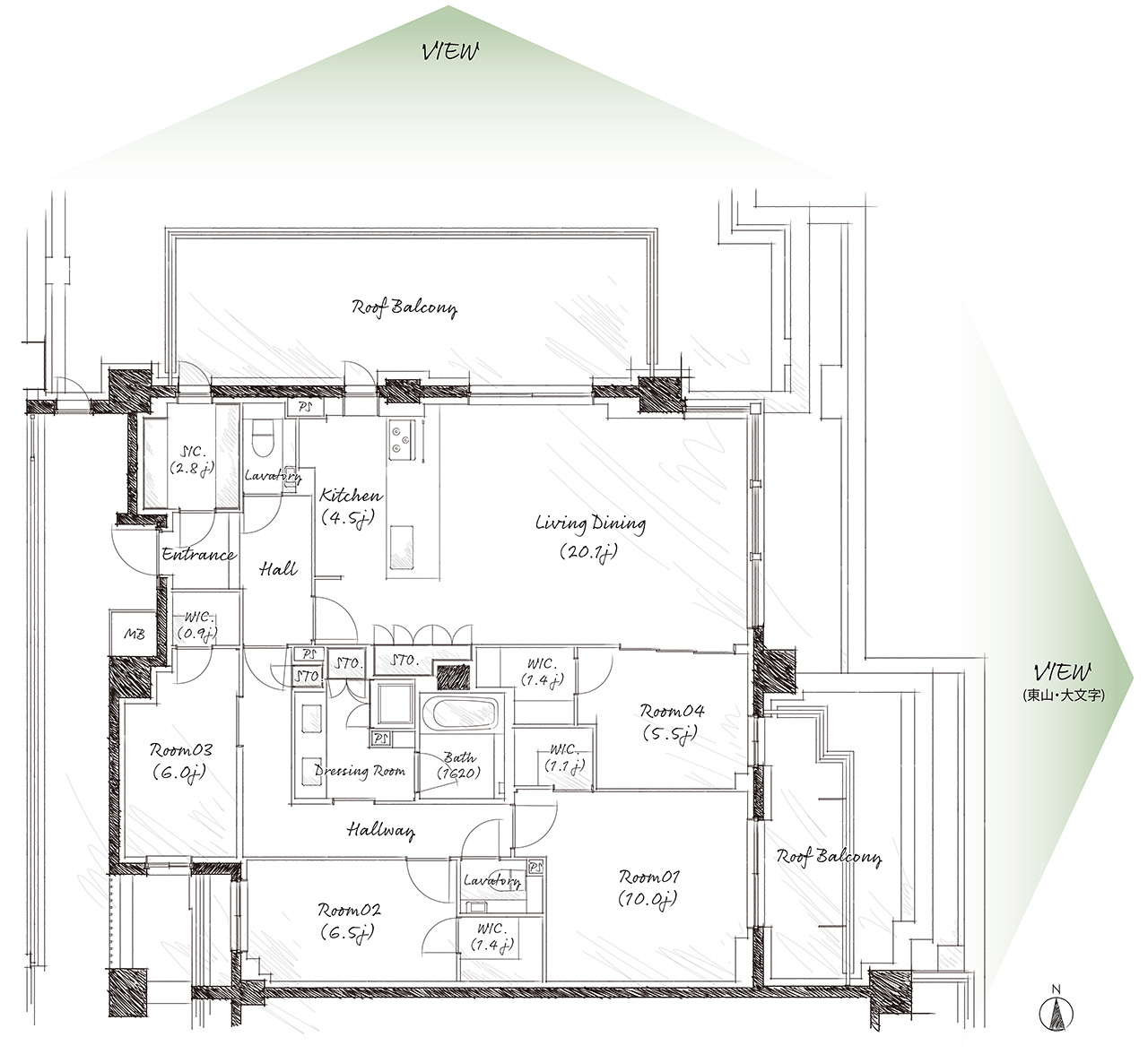
専有面積47㎡台~144㎡台の多彩なプラン。
敷地配置イラスト
間取りイラスト
(仮称)京都市左京区聖護院円頓美町計画 Trタイプ(128.76㎡)
留守宅管理サービスを導入。
「別邸」として利用されるお客様へのソフトサービスとして、留守宅管理サービスをご用意しています。コンシェルジュ会社との間で、鍵の開閉を任された専門スタッフがお部屋の鍵を開け、掃除やリネン交換など様々なお手伝いをいたします。お客様はそれらのサービスをいつでもご利用いただくことができます(有料)。
留守宅管理のサービス例 (有料)
■お掃除 ■水通し ■窓開け、風通し ■リネン交換■植栽の水やり ■郵便物回収、転送 ■ペットのお世話 ■消防点検立会い ■雑排水管掃除立会い 等
※掲載のサービス例は計画段階のものであり、状況により変更されることがあります。


all image photo
JR「京都」駅からタクシーで18分。※
週末は新幹線を利用し、東京から京都へ(所要時間約2時間9分)。JR「京都」駅からタクシーに乗車し現地までおよそ18分。さらに、現地から徒歩3分の京都市バス「熊野神社前」バス停からバス便も利用可能です。
※GOタクシー料金検索(https://go.goinc.jp/charge-search)調べ(2024年12月現在)

image photo
「神宮丸太町」駅へ徒歩10分。
京都中心部へも気軽にアクセス。
最寄り駅からは「三条」駅へ1駅、「祇園四条」駅へ2駅。
華やぎの都心へも気軽に出掛けられます。
また徒歩16分の京都市営地下鉄「東山」駅も利用が可能です。


all image photo

〈(仮称)京都市左京区聖護院円頓美町計画〉は、
2025年3月上旬に公式物件ホームページをアップする予定です。
ご期待ください。
「京の一生もん」を探求し続けるザ・パークハウスが、
これまでに出会った「京のこころいき」を
“住まいへ”昇華する〈(仮称)京都市左京区聖護院円頓美町計画〉。
プロジェクトについて詳細案内をご希望のお客様は、
是非GRAN DESKまでご連絡ください。
〈(仮称)京都市左京区聖護院円頓美町計画〉
【計画概要】
※「(仮称)京都市左京区聖護院円頓美町画」に関する計画概要は計画段階のものであり、変更になる場合があります。
※掲載の眺望写真は、現地4階相当から東方向を撮影(2024年12月撮影)した眺望写真に一部加工したもので、実際とは異なります。眺望は将来的に保証されるものではありません。
※掲載のエリア概念イラストは、地図を基に周辺の立地を概念化しイラストで表現したもので、建物位置・形状・距離・高さ・地形・縮尺等は実際とは異なります。
※掲載の施設や周辺環境の写真(image photoを除く)は、2022年11月、2023年9月、2024年6月に撮影したものです。
※掲載の各完成予想CGは、計画段階の図面を基に描き起こしたもので、実際とは異なります。植栽は、特定の季節やご入居時の状態を想定して描かれたものではありません。周辺道路・建物等は簡略化しております。雨樋、エアコン室外機、給湯器、TVアンテナ等再現されていない設備機器等がございます。
※掲載の敷地配置イラスト・間取りイラストは、計画段階の図面を基に描き起こしたもので、実際とは異なります。
※表示距離は現地からの地図上の概算です。徒歩分数は80mを1分として算出し、端数は切り上げております。所要時間はルートや交通事情により異なります。
※掲載の新幹線の所要時間は、通勤時(7:00~9:00)のもので、時間帯により異なります。表記の分数は通勤時(7:00~9:00目的地着)の所要時間です。「駅すぱあと」調べ(2024年12月時点)
※所要時間には、乗り換え・待ち時間を含みます。また、時間帯により異なります。