
#23 寝室について
寝室のありかたは様々です。夫婦別室で寝る、家族みんな一緒に寝る、または子ども部屋は早く独立させて寝かせたい。家族ごとに、また家族の成長にあわせてその寝方は様々でしょう。
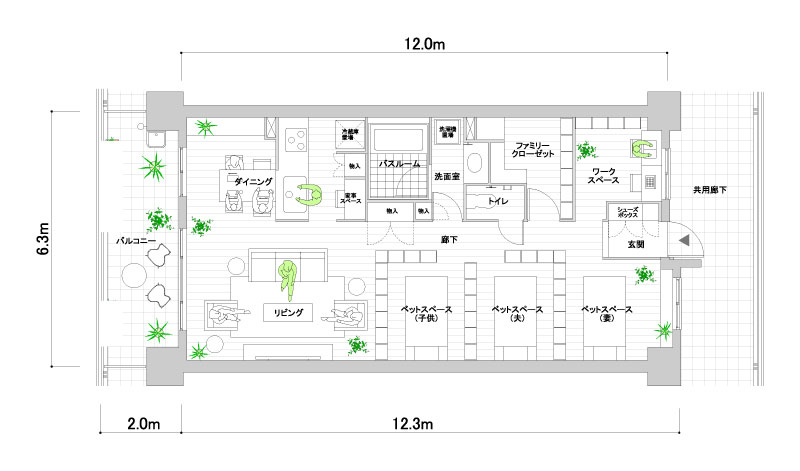
下の絵をご覧ください。
夫婦別室ですが、アンケートで聞いてみると30%近くの人が夫婦別室がいいと答えています。その理由も様々ですが、生活の時間帯が違うという理由が一番多いようです。もちろん、年齢にもよります。年齢とともに、夫婦別室の方がいいという方は多くなるようです。
また今回の提案では、始めの3つのプランは共通して寝室は寝るだけの大きさにして、何も置かずに、収納や書斎を家族みんなで共有するように、4つ目の提案では寝室で寝る以外の時間も過ごすような間取りを考えてみました。
一方、家族みんなで一緒に寝るほうがいいという方もかなりいます。子どもが小さい家庭では、こうした寝方が多いようです。
もうひとつの絵は、家全体が一室で、家具などで仕切りながらも空間はゆるやかにつながっているという例です。家族のプライバシーはあまりないのですが、家族の気配を感じながら過ごす事ができます。子どもが少し大きくなったら子ども部屋だけ仕切る、あるいは夫婦寝室を仕切るというのもあるかもしれません。
次の絵はプライバシーを重視した例です。部屋の中でくつろいだり、勉強をしたり…。区切られた書斎兼趣味の部屋は夫婦で使う事を前提にしています。収納も部屋にそれぞれつけています。書斎については使わない時は引き戸をあけて、リビングと一体の空間としても使えます。
このように、寝室の考え方は様々です。
寝室は仕切らない、あるいは、夫婦寝室だけを仕切る。夫婦寝室を仕切るが子ども部屋を仕切らない、夫婦寝室も子ども部屋もしっかり仕切る。家族の成長にあわせて可変にするなど様々です。さらに個室の考え方は、収納や書斎などの作り方にも影響しそうです。
もうひとつ、音の問題も考える必要があるでしょう。プライバシーを確保したい時に見えないというだけでいいのか、それとも音についてもしっかり遮断するほうがいいのか、人それぞれのような気もします。
アンケートなどから見ると、ある程度音が漏れても構わないという人が多いようです。もともと日本人は、ふすまや障子文化で育ったというのも理由の一つかもしれません。
個室の持ち方について、是非みなさんのご意見をお寄せください。
-
#118 これからのリノベーションについて vol.2 ~キッチンと洗面化粧台を一緒にしちゃいました!
update:2022/03/22
-
#117 これからのリノベーションについて vol.1 ~クローゼットの使い方を考える
update:2021/09/02
-
A044「玄関収納の使い方・バルコニーでの過ごし方について」のアンケート報告
update:2023/04/03
-
update:2023/03/31
-
update:2016/03/02
-
M28 食器棚について 〜入居者アンケートと訪問調査の中から
update:2015/12/24
-
update:2016/12/20
-
RS010 1LDKを2LDKに ~子ども室を設けることで生まれる空間~
update:2016/11/08
-
J006 リノベーションで自由度のあるクローゼットを作りました
update:2022/01/26
-
update:2016/04/27





