間取り部門【一般】 – マンション暮らしのアイデア企画2014 住まいの「フォト」&「間取り」コンペ
間取り部門【一般】
・最優秀賞:「壁のないイエ」
・審査員特別賞 Open A賞:「路地で繋がるマンション」
・審査員特別賞 イデ―賞:「回転建具のある住宅」
・審査員特別賞 メックecoライフ賞:「枠組の家 −多様な住空間−」
■最優秀賞:「壁のないイエ」 吉野真実
ぱらぱら ぱたん かりかりかり
こととん こととん ぐつぐつぐつ
がたがた がたん ぱたぱたぱた
このイエには いろんな音があふれています
すこし古い お父さんの本のにおい
お日様のひかりをたくさん吸いこんだ 洗濯物のにおい
じっくりじっくり作られた お母さんの晩ご飯のにおい
このイエには いろんなにおいがただよっています
このイエには 一枚も壁がありません
天井や床からのびた棚だけが ぽつぽつと 置かれています
大きな壁ではなく 小さな棚たちによって区切られたイエは
なんだかとっても のびのびしているようにみえます
それぞれの居場所が 小さな棚たちによって ゆるやかに分けられています
別の場所で 別のことをしていても 音やにおいが 棚のすきまから伝わってきます
「お父さんは 本棚の整理をしているんだな」
「今日の晩ご飯はきっと ぼくの大好きなハンバーグだ」
それぞれはひとりでいても けっしてヒトリではないのです
そして 小さな棚たちは 動きはじめます
写真が趣味のおじいさんのイエでは 玄関わきの小さなギャラリーへ
カフェをはじめた夫婦のイエでは 共同廊下のテーブル席へと 姿をかえます
小さな棚たちによって 家族どうし そしてイエの外まで
ゆるやかにつながっていくくらしが はじまります
【審査員コメント】
Open A ltd.代表 馬場正尊 講評
この作品は「間取り」ですが、一番の売りが間取りじゃなくて「断面」であるというところが何よりも魅力です。下に棚が置いてあるのではなく、天井から棚が下りてきている。下がストーンと抜けており、上に壁がある。だから角度によってはスッと抜けていたり、座ったら全部ポーンと抜けていたり、子どもだったらブワーッと走れたりという間取りだけではない面白さがあります。高さ2.5mくらいの世界の中にも、断面で表現できる世界があるのだということを追求した点で、この1枚の絵が非常に目を引きました。小さいところを見ても、細かい楽しい空間の使い方みたいなものが散りばめられていて、このあたりはやはり最優秀賞にふさわしい作品です。
■審査員特別賞 Open A賞:「路地で繋がるマンション」 臼井いづみ
今日は留学生の王君にこのマンションを案内中だ。
王君「4月から留学生仲間と住めたらと思ってます。」
私「ここはいろんな人が住んでます。外国の人もいるし、定年後のご夫婦や、私のようにフリーで仕事をする人も多いです。皆それぞれの時間で動いてるからいつも誰かに会うし、私は安心して住んでます。」
王君「あの大きな立体物を運んでる人は?」
私「ああ、アメリカの作家のカレンさん。彼女はこの街のアーティストレジデンスという事業で来ていて、街に住みながら創作活動しています。ほら、あの入口に赤いコンテナボックスが積んであるのが彼女の部屋。その斜め上の鳥かごを吊るしてる部屋は、中国人のご夫婦が住んでいて、夕方は時々通路でお友達と麻雀をしてますよ。」
王君「はい、私の故郷でも皆よくやっていました。空き地が有ると、おしゃべりしたり太極拳をしたり。そういえば、ここは何だか懐かしいです。」
私「そうですか!私には新鮮だけど、その気持ち分かる気がします。」
【審査員コメント】
Open A ltd.代表 馬場正尊 講評
上海在住というのを聞いて、考えたらアジアっぽいかもしれないと思いました。廊下から入った玄関のところが、すぐ土間みたいな空間になっていますが、そこがセミオープンなのです。その後ろにもう一つのプライバシーの強い空間があり、その空間が外の人がフッと入ってもいいよというセミパブリックな空間になっています。今はプライベートとパブリック、共用空間と個室空間みたいにパキッと分かれていますが、昔はその間に例えば縁側とか、土間とか、豊かな空間があったと思います。それをバシッとなくしてしまって、日本の住空間は少し面白くなくなっていると思っていました。しかし、この作品はそこにその豊かな中間領域、セミパブリック空間を作って、また楽しそうな出来事が起こりそうな空間がデザインされていました。
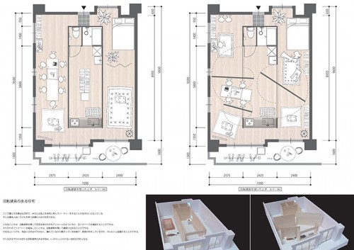
■審査員特別賞 イデ―賞:「回転建具のある住宅」 山田寛
ここで暮らす夫婦は社交的で、休日には友人を自宅に呼んでパーティーをすることが生きがいとなっている。
そんな趣味と幼い子どもを持つ夫婦のための住宅である。
人を招くときは、回転建具を閉じて住宅全体が大きなワンルームのようになり、広いスペースを確保することができる。
それぞれのプライベートを確保したいときは、回転建具を開いて適度に仕切ることができる。
仕切るといっても、完全に仕切るのではなく、離れていながら繋がっている状態で、家族が何をしているのか、やんわりと認識することができる。
そんなゆるやかに仕切れる回転建具のある住宅は、nLDK にとらわれない自由な住宅となる。
【審査員コメント】
株式会社イデ―常務取締役 川渕恵理子 講評
舞台では真ん中に軸があって、そこでグルッと回るような大きな回転の壁というものがあります。斜めに空間を作ったり、まっすぐ真ん中にプライベートな空間を作ったりできます。このプランの主旨は、回転壁がときどきによっていろいろな空間を家の中で楽しむことができるということです。「何となくの1ルーム」、「完全なプライベート空間」みたいな変化が面白いと思いました。ポイントは斜めの壁です。特に家の建築と言うと、たいてい縦横水平垂直というのが空間の基本になっていますが、もっといろいろな形があってもいいと思いますし、いつも見ているものを少し角度を変えるだけで世の中が違って見えるというのは、すごく面白い経験だと思っています。一般的な家の機能というと、収納ができるとか暖かいとかの機能を思い浮かべますが、脳とか心とか自分の発想とかに家がもっと働きかけられたら面白いなという視点でこの作品を選びました。
■審査員特別賞 メックecoライフ賞:「枠組の家 −多様な住空間−」 中西洋光
少子高齢化(人口減少)や経済成長の低下による需要の飽和で、空き家の数は増加していく傾向にあります。科学技術の進歩、国際化、世代交代での家族のあり方などライフスタイルの多様化が見られ、定住期間が短く地域の社会性が失われています。住人自身が手を加えることのできるフレームを自由に作りかえ、動かすことで自分のライフスタイルの変化にあわせて空間を生み出します。フレキシブルで長く住み続けたい間取りを提供することにより地域への愛着や住民主体の催しもので住民間のつながりを深めるとともに、1人ひとりがまちづくりへの主体性を高めます。
フレームは家のどこからでも良い風景を眺めることができながら、室内に遠近感を作り出し、部屋を広く見せます。天気の良い日には窓辺型で外部空間を広げ、外で景色を眺めながら食事が楽しめます。ご高齢者の方あるいは介護の場合は、食寝統合型でキッチンとベッドを近づけることもできます。
幅広い年齢層に合わせられ、転居後の生活の中での生まれる新たなニーズ、それぞれの個性をも受容できることで、選ばれ親しみをもって長く住まわれ、地域社会を再構築する枠組として機能する未来の住まいを提案します。
【審査員コメント】
株式会社メックecoライフ 平生進一
マンションの住戸の中に、稼働する床と小さな壁と天井まで付いている空間がある。まさに大きな枠組で構成されています。この閉じている真四角の空間の床にキャスターがついていて、それが前後に動いて色々な空間ができるというところが、この作品の面白いところです。キャスターで動くので、元々のスラブより床が上がっているところが色々な役目をするので、すごくいいと思いました。さらに天井があることで、ライティングも含めたこの空間が、広いマンションの1室の中を移動して面白いことになるんじゃないかと感じました。作図も大変丁寧に綺麗にリアリティがある感じで、将来ぜひご自分のこういうプランを実社会でも役立てて実現していただきたいと思い選びました。
-
#118 これからのリノベーションについて vol.2 ~キッチンと洗面化粧台を一緒にしちゃいました!
update:2022/03/22
-
#117 これからのリノベーションについて vol.1 ~クローゼットの使い方を考える
update:2021/09/02
-
A044「玄関収納の使い方・バルコニーでの過ごし方について」のアンケート報告
update:2023/04/03
-
update:2023/03/31
-
update:2016/03/02
-
M28 食器棚について 〜入居者アンケートと訪問調査の中から
update:2015/12/24
-
update:2016/12/20
-
RS010 1LDKを2LDKに ~子ども室を設けることで生まれる空間~
update:2016/11/08
-
J006 リノベーションで自由度のあるクローゼットを作りました
update:2022/01/26
-
update:2016/04/27





