RS009 2LDKを5人家族で住む
ご相談内容
2LDKに住んでいるが、子ども3人がおり、手狭になってきました。ただ、立地も環境もよい場所なのでできれば引っ越さず、リフォームをすることによって快適にすごせないかと考えております。
お客様
夫婦と子ども3人家族
物件状況
65㎡
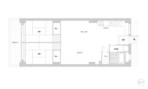
現在の間取り

三菱地所のリフォーム 営業担当
小林 将之(こばやし まさゆき)
プロフィール
三菱地所ホーム株式会社 マンションリフォーム事業部
二級建築士 二級建築施工管理技士
新築戸建設計、マンション・戸建てリフォームを17年ほど携わってまいりました。
私たちの仕事は、お客様の具体化されていない夢をカタチにすること。さらにヒアリングから見えてくる 「住みやすさ」を叶えることが私たちの仕事と捉えています。
愛着のある住まいに、永く住まえるお手伝いをさせて頂きます。
三菱地所のリフォーム設計チームからの3つの提案
提案1「ベッド一列配置」
壁際にベッドを一列に配置してみました。寝台列車のようですが、寝るところを最小限のスペースにすることで、生活空間を広く確保できています。リビングには大きなテーブルを設け仕事や勉強ができるようにワークスペースにしました。各自の収納スペース以外にも共有で使える大き目の収納を設けています。
提案2「子どものスペースを南側に」
南側に子どもたちのベッドを配置して、スタディーコーナーを広めにとりました。子どもたちは広々としたスタディーコーナーで自由に遊びます。引戸を開けているときは、リビングの続きとして利用することができます。ご夫婦のベッドは、昼間は折りたたまれてリビングを広々と使い、夜はベッドを倒して、映画などを見ながらゆったりと休みます。リビングの大きな丸テーブルでは、昔のお茶の間のように食事をし、家族団欒の時間を過ごします。コストを抑えてキッチンの位置は既存の位置のままにしましたが、SICを設けて家事動線を良くしました。WICもあるので、家族の季節外の衣類などをまとめて収納しておけます。狭いながらも家族で有効に空間を使えるプランです。
提案3「続き間のある和室」
家の半分は和室の続き間にしました。各部屋は障子で仕切られます。障子を外せば一続きの空間になり、大空間の畳スペースになります。一段上がった畳の下と和室の壁側は全て収納になっていて、家族其々の衣類等が十分に収納できます。玄関を入った正面は土間から続く縁側のような空間。近所の人を招いてお茶を飲むのも良いでしょう。日本ならではの土間・縁側・続き間の和室を大家族で住まう空間に上手く活用しました。
※これらのプランは、建物の状況や管理規約等により実施できない場合があります。
皆さまからのコメント
コメントありがとうございます。工期と費用はリフォームをする際に大切なポイントですよね。スマイラボではアイデア提案となりますが、具体的な取組みは「三菱地所のリフォーム」へお問い合わせいただくと、より具体的な提案をさせていただきます。また、どのくらいの工期と予算だったら現実的でしょうか。ご意見をおまちしております。
コメントありがとうございます。これらかもスマイラボは様々なアイデアを提案してまいります。2015年12月に「あったらいいな こんな住まい」書籍を発刊しました。こちらにも斬新な間取りがたくさん掲載されておりますので宜しければスマイラボトップページよりご確認ください。これからもご意見をおまちしております。
コメントありがとうございます。標準的な間取りに捉われずに個々のライフスタイルを実現できる間取り提案をこれからも考えて参ります。
コメントありがとうございます。大人であればどこか懐かしく、かつて体験したことのある空間なのかもしれません。また子供達がワクワクしてくれると住まいが面積ではなくアイデア次第で豊かな空間になることを教えられのかもしれませんね。
コメントありがとうございます。私たちも「こういった間取りがあったらいいよね」という気持ちで提案させていただきました。脱NLDKという概念になるのでしょうか。このような間取りに共感いただける方が増えていくと日本のマンションがもっと変わっていくかもしれません。これからも感想をお待ちしております。
-
#118 これからのリノベーションについて vol.2 ~キッチンと洗面化粧台を一緒にしちゃいました!
update:2022/03/22
-
#117 これからのリノベーションについて vol.1 ~クローゼットの使い方を考える
update:2021/09/02
-
A044「玄関収納の使い方・バルコニーでの過ごし方について」のアンケート報告
update:2023/04/03
-
update:2023/03/31
-
update:2016/03/02
-
M28 食器棚について 〜入居者アンケートと訪問調査の中から
update:2015/12/24
-
update:2016/12/20
-
RS010 1LDKを2LDKに ~子ども室を設けることで生まれる空間~
update:2016/11/08
-
J006 リノベーションで自由度のあるクローゼットを作りました
update:2022/01/26
-
update:2016/04/27







コメントありがとうございます。家族構成が変化しても住み慣れた場所を離れたくないとお考えの方は意外と多いのではないでしょうか。子どもの成長と間取りについて、スマイラボでも考えてみたいと思います。