ポートレートモード(縦置き)表示でご覧ください。

2LDK plan

機能性を備えた
ゆとりある2LDKプラン。

G type

2LDK+S
+WIC+SIC+TR

専有面積 /
65.09㎡(約19.68坪)
※トランクルーム面積1.02㎡(約0.30坪)含む
バルコニー面積 /
8.46(約2.55坪)
  • シューズインクローゼットと物入を玄関に設置

  • 多目的に使える引き戸のサービスルーム

  • トランクルームを玄関脇に設置

  • 明るく開放的なカウンターキッチン

  • WIC:ウォークインクローゼット
  • SIC:シューズインクローゼット
  • TR:トランクルーム
  • S:サービスルーム
  • 通風
  • 採光
  • 床暖房範囲
  • 収納

大切なペットと心地よく暮らす、
やすらぎの2SLDK

サービスルームは、ペットがのびのびと過ごせる個室としてアレンジ。
洋室2は、趣味を楽しんだり、ひと息ついたりできるリラックス空間に。
人もペットも、心地よい距離感で過ごせる、やさしさに包まれた住まい。

家族の成長とともに、
暮らしの楽しみが広がる2SLDK

サービスルームには家族の趣味道具をすっきりと収納でき、
お出かけ前の準備もスムーズに。
洋室2は、お子さまが家族の気配を感じながらも、自分だけでのびのびと過ごせる空間に。
コンパクトながら、家族の時間と個の時間、どちらも大切にできる住まい。

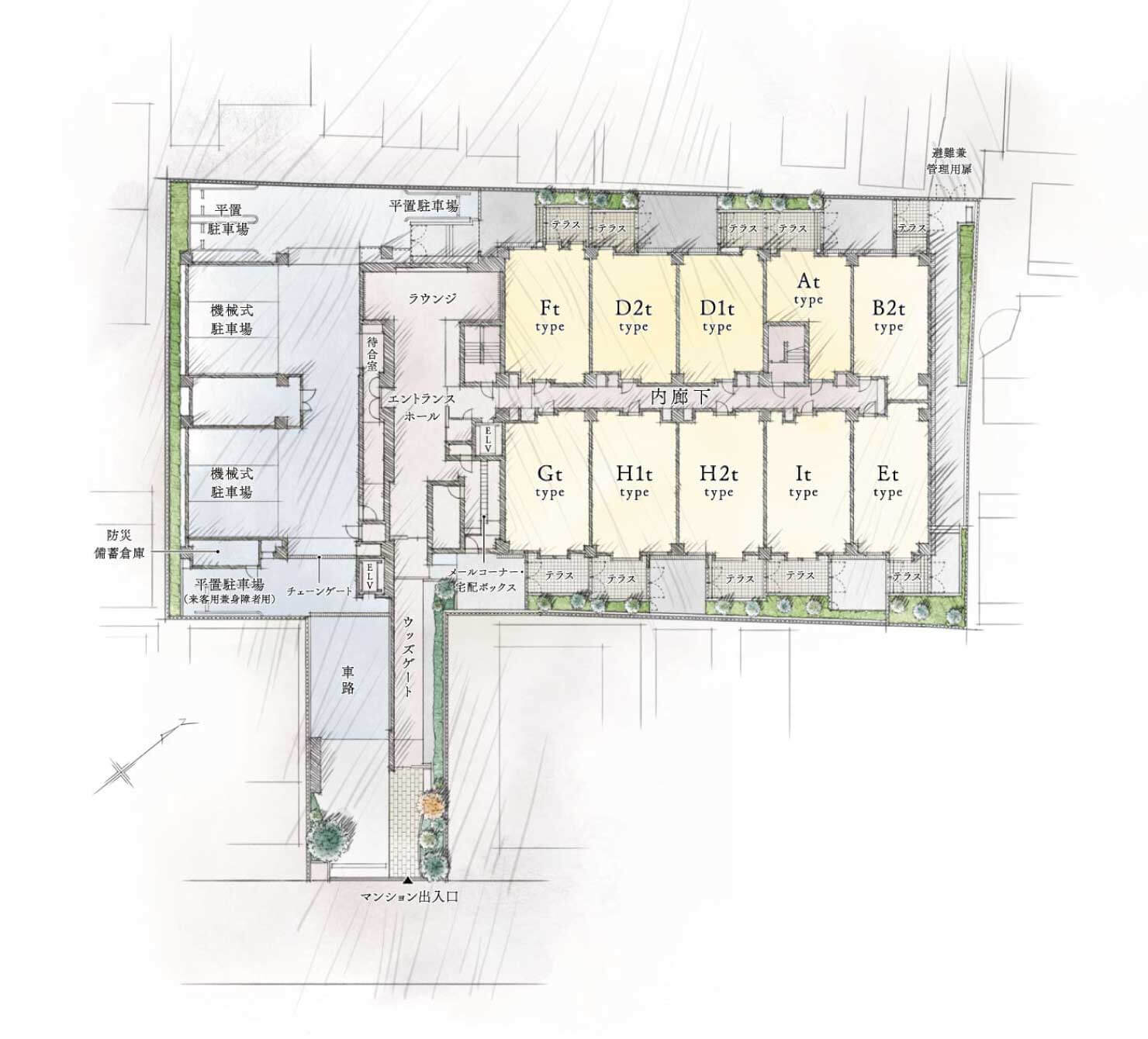
sitemap

住戸位置図

1階平面イメージイラスト

2階平面図