ポートレートモード(縦置き)表示でご覧ください。

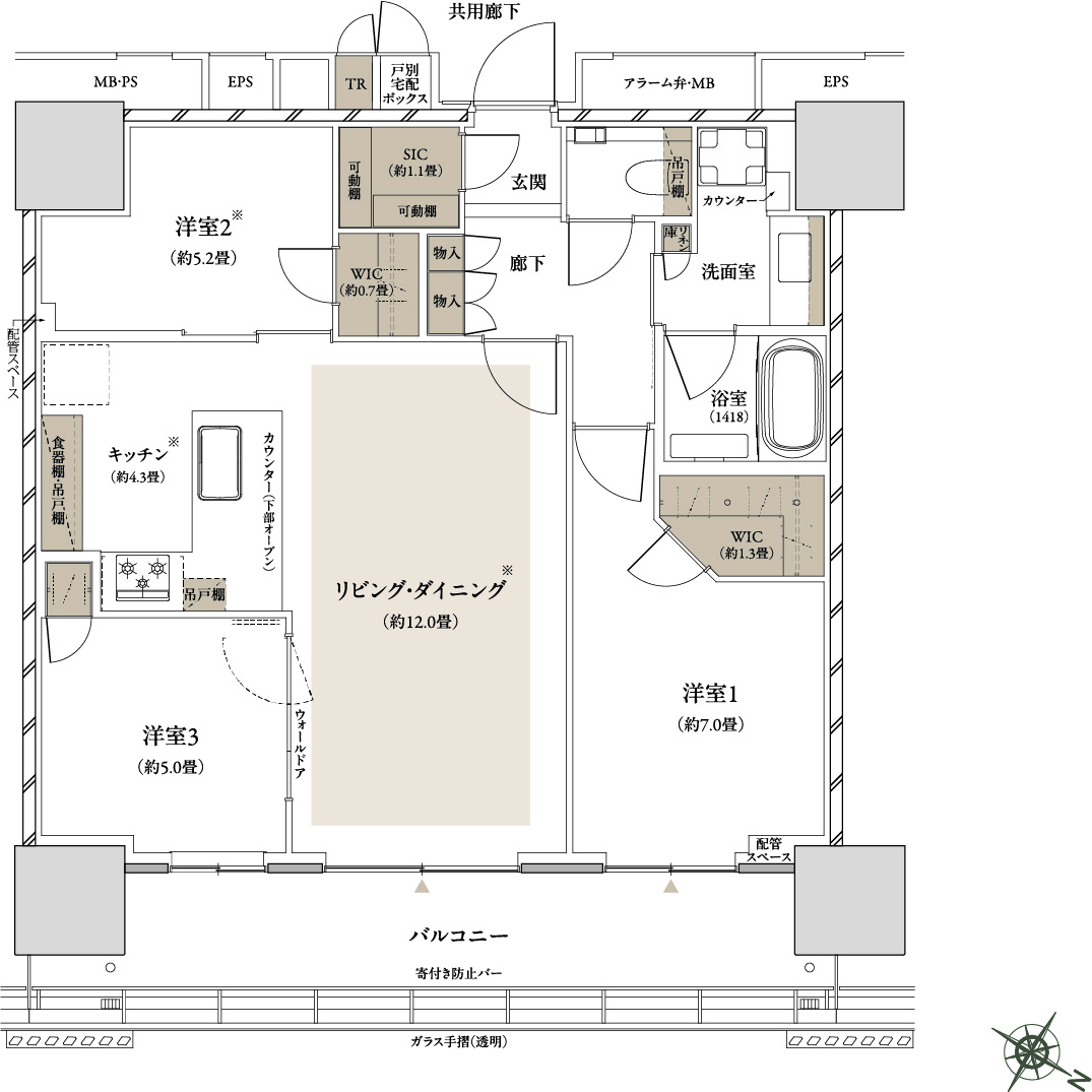
S-75Btype

3LDK+2WIC+SIC+TR

専有面積/75.47㎡(約22.82坪)

※トランクルーム面積0.32㎡(約0.09坪) ・
戸別宅配ボックス面積0.42㎡(約0.12坪)含む

  • バルコニー面積/15.03㎡(約4.54坪)

床暖房範囲 収納

WIC:ウォークインクローゼット SIC:シューズインクローゼット TR:トランクルーム

※掲載の図面は、計画段階のもので変更になる場合がございます。詳細は図面集をご参照ください。
※17〜26階のリビング・ダイニング、キッチン、洋室2は建築基準法の居室要件を満たすために、床面において50ルクス以上の照度を確保できる照明器具の設置が必要です。