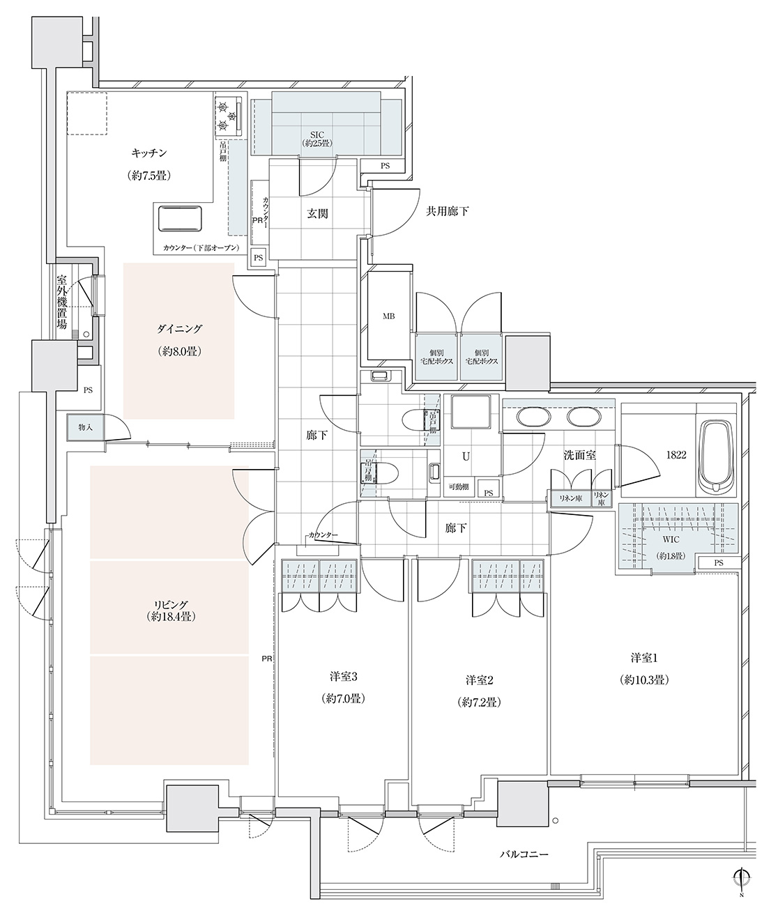
P-142B
3LDK+WIC+SIC
専有面積:140.88㎡(約42.61坪)
個別宅配ボックス面積:1.64㎡(約0.49坪)
合計専有面積:142.52㎡(約43.11坪)
バルコニー面積:12.96㎡(約3.92坪)
室外機置場面積:1.64㎡(約0.49坪)
