P-147C
MENU1
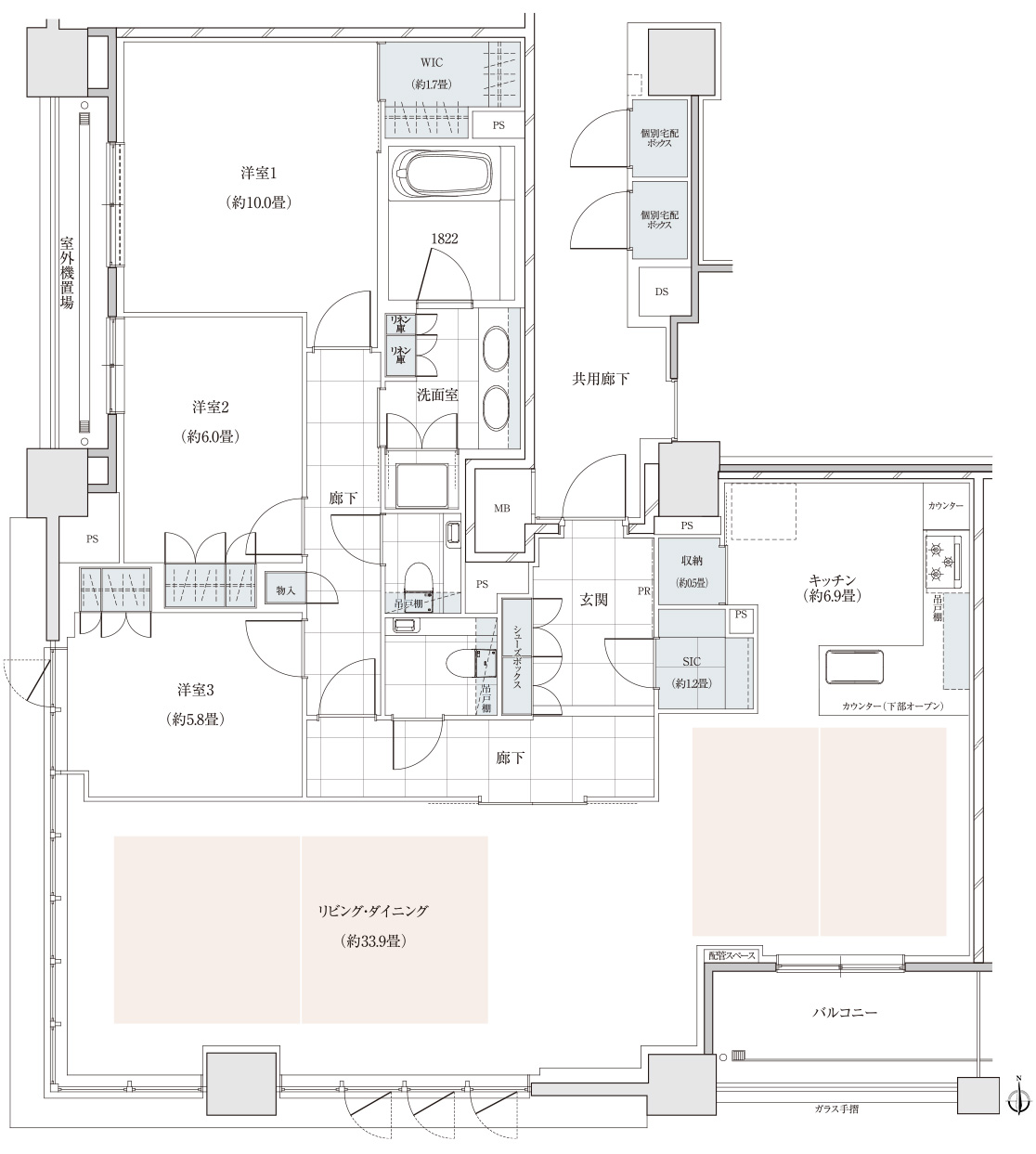
3LDK+WIC+SIC
3LDK+WIC+SIC
専有面積:145.41㎡(約43.98坪)
個別宅配ボックス面積:2.23㎡(約0.67坪)
合計専有面積:147.64㎡(約44.66坪)
バルコニー面積:6.76㎡(約2.04坪)
室外機置場面積:5.54㎡(約1.67坪)
