ポートレートモード(縦置き)表示でご覧ください。
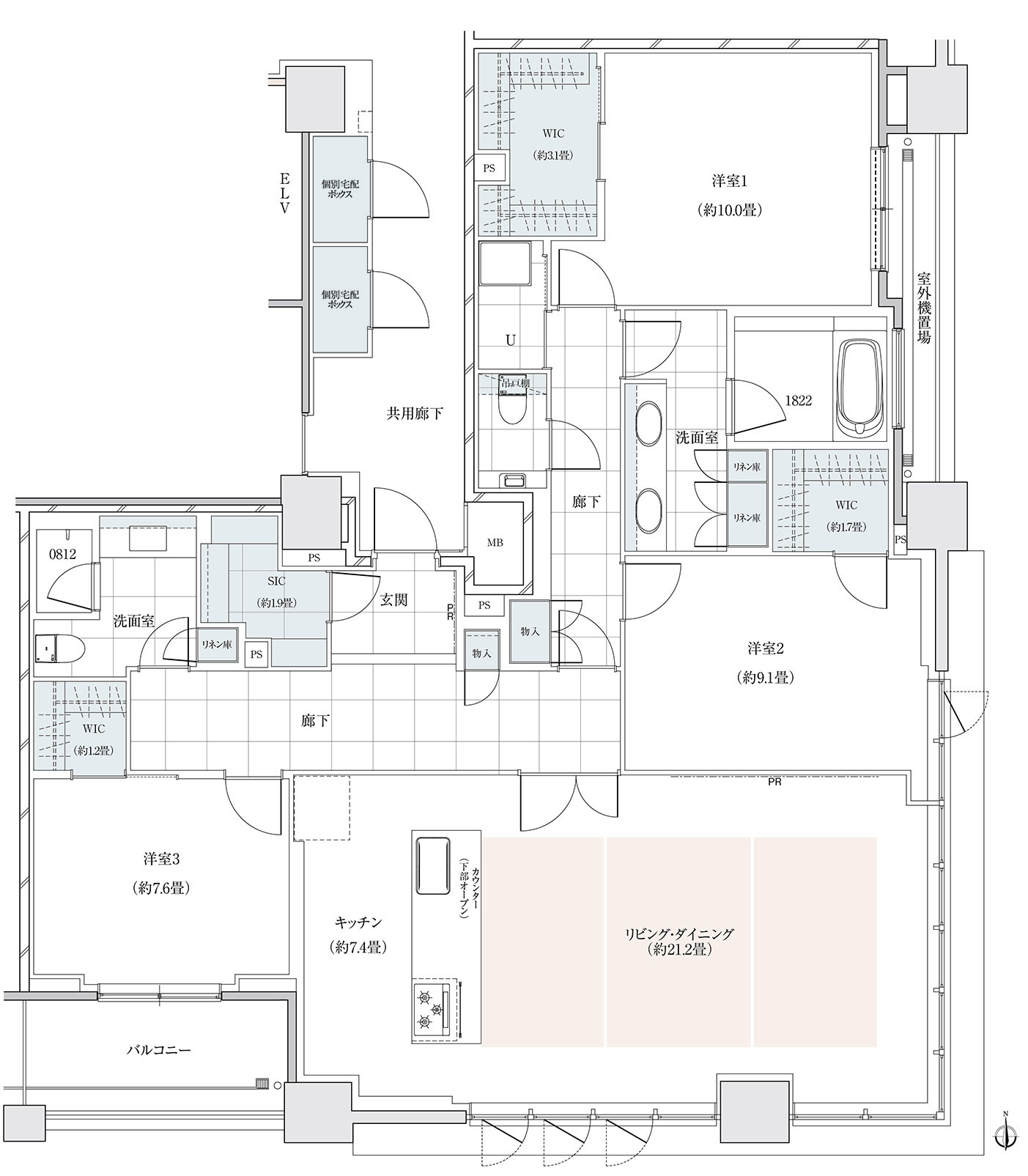
P-151D
3
LDK+WIC+SIC
専有面積:
148
.35㎡
(約44.87坪)
個別宅配ボックス面積:2.98㎡
(約0.90坪)
合計専有面積:
151
.33㎡
(約45.77坪)
バルコニー面積:
6
.76㎡
(約2.04坪)
室外機置場面積:
4
.48㎡
(約1.35坪)
WIC:ウォークインクローゼット、SIC:シューズインクローゼット
※掲載の図面は、計画段階のもので変更になる場合がございます。詳細は図面集をご参照ください。
プレミアムフロア特集にもどる