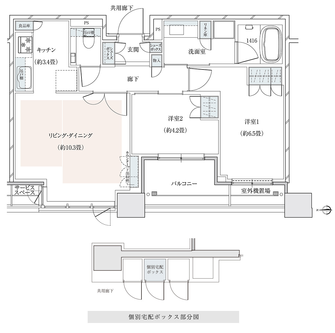
ポートレートモード(縦置き)表示でご覧ください。
R-59A
2
LDK
専有面積:
58
.72
(約17.76坪)
個別宅配ボックス面積:0.75㎡
(約0.22坪)
合計専有面積:
59
.47㎡
(約17.98坪)
バルコニー面積:
4
.99㎡
(約1.50坪)
室外機置場面積:
1
.78㎡
(約0.53坪)
サービススペース面積:
0
.94㎡
(約0.28坪)
※掲載の図面は、計画段階のもので変更になる場合がございます。詳細は図面集をご参照ください。
間取り一覧に戻る