ポートレートモード(縦置き)表示でご覧ください。

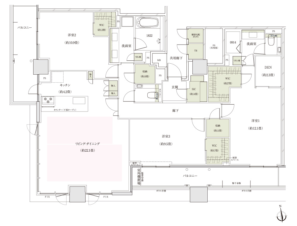
P153H
3LDK+3WIC+SIC+DEN
153
.89m2
(約46.55坪)
151
.33m2
(約45.77坪)

個別宅配ボックス面積:1.08m2(約0.32坪)

トランクルーム面積:1.48m2(約0.44坪)

バルコニー面積:23.35m2(約7.06坪)

室外機置場面積:0.84m2(約0.25坪)

間取り図

WIC:ウォークインクローゼット、SIC:シューズインクローゼット、DEN:書斎

床暖房範囲

収納

※掲載の図面は計画段階のもので変更になる場合がございます。詳細は図面集をご参照ください。