ポートレートモード(縦置き)表示でご覧ください。

75AtTYPE 【MENU PLAN】
  • 住戸位置概念図

    住戸位置概念図

  • 住戸位置断面概念図

    住戸位置断面概念図

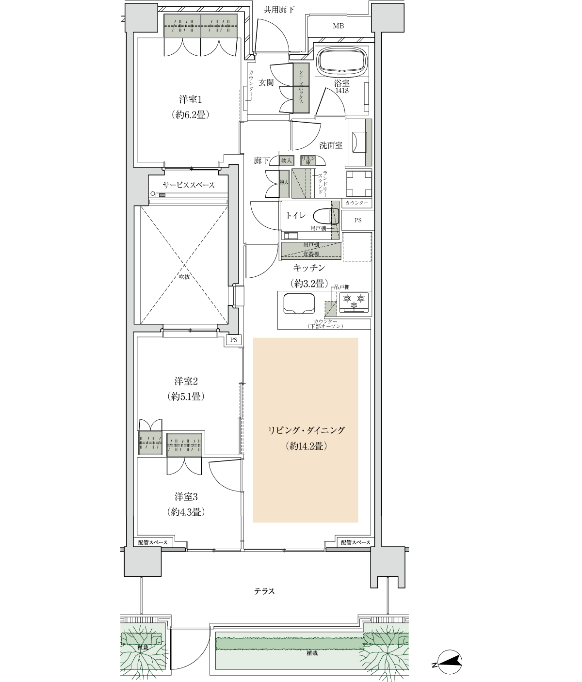
3LDK
専有面積:76.08m²(約23.01坪)
  • テラス面積:11.42m²(約3.45坪)
  • サービススペース面積(2階):2.16m²(約0.65坪)
75AT-MENU TYPE
  • 西向き
    (医科大学方向)
  • ランドリースタンド付
  • 吹抜
  • テラス付
  • :収納

  • :床暖房

※掲載の図面は、計画段階のもので変更になる場合がございます。

75AT-MENU TYPE
第2期2次販売

※掲載の住戸位置概念図および住戸位置断面概念図は計画段階のもので、周辺道路・建物等は簡略化しております。

エントリーいただいたお客様には、
「三菱地所のレジデンスクラブ」サイト内の
物件紹介ページにて、
最新情報をお知らせいたします。
お申込み後の返信メールより、
会員登録またはログインをいただき
正式エントリー完了となります。