間取り|三菱地所レジデンスの賃貸マンション「ザ・パークハビオ 大森町」
三菱地所レジデンスの賃貸マンション
空室情報
TOP
ザ・パークハビオ 大森町 トップ
ROOM PLAN
間取り
GALLERY
ギャラリー
EQUIPMENT
設備仕様
LIFESTYLE
ライフスタイル
MAP
周辺案内
サイトポリシー/個人情報保護方針
三菱地所のレジデンスクラブ
お問い合わせは
三菱地所ハウスネット株式会社まで
03-3400-2313
「ザ・パークハビオ」ブランドサイト
空室情報
ROOM PLAN
間取り
ザ・パークハビオ 大森町 トップ
間取り
VIEW
西方向の眺望
<現地15階より>
昼
夜
東方向の眺望
<現地15階より>
昼
夜
1R
1DK
1LDK
2LDK
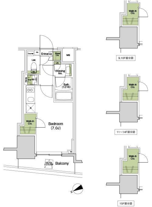
平面図
空室情報
B
TYPE
1
R
25
.21㎡
空室情報
B
TYPE
専有面積
25
.21
m
2
(約7.62坪)
1
R
バルコニー面積/4.64㎡(約1.40坪)
居室7.0畳
バストイレ別
ウォークインクロゼット
=収納
※掲載の図面は計画段階のものであり、施工上の理由などで変更することがございます。
居室7.0畳
バストイレ別
ウォークインクロゼット