ポートレートモード(縦置き)表示でご覧ください。

Plan プラン

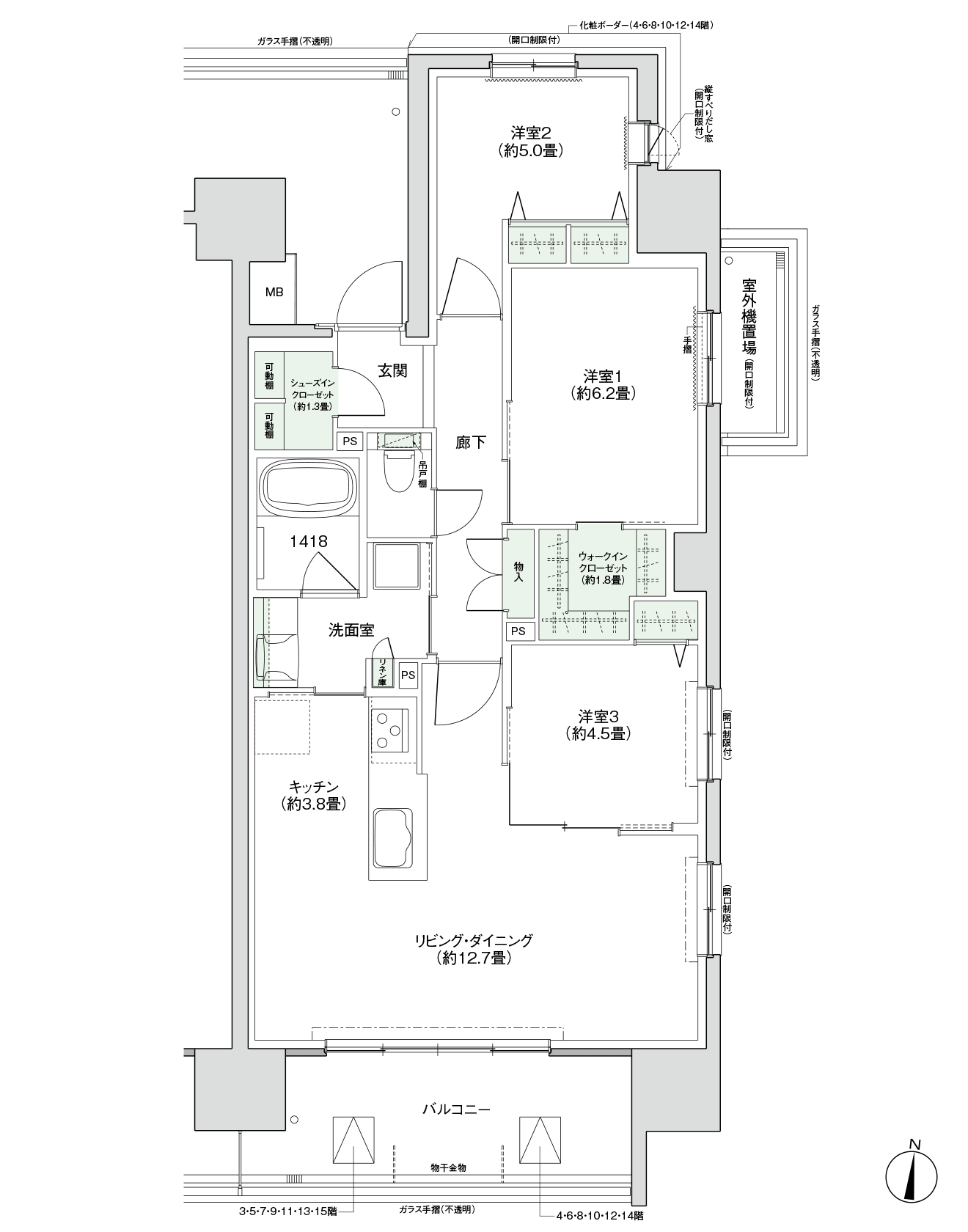
Dtype

3LDK+WIC+SIC

専有面積
76.32m2(約23.08坪)
バルコニー面積:10.35m2(約3.13坪)
室外機置場面積:2.97m2(約0.89坪)
  • 収納
  • WIC:ウォークインクローゼット
  • SIC:シューズインクローゼット
Dタイプの位置を表した立面図

物件エントリーとモデルルーム見学までの流れ

「三菱地所のレジデンスクラブ」会員サイト内のMy Selectionにて限定情報を随時公開してまいります。

  1. 必要項目を入力して
    物件へエントリー。

  2. エントリー後に送付されるメールから「三菱地所のレジデンスクラブ」に新規登録を行う。(Machi Pass登録も行う)

    ※すでに「三菱地所のレジデンスクラブ」に登録済みの方は、メールからログインをお願いします。

  3. 「三菱地所のレジデンスクラブ」会員サイト内の「My Selection」の物件紹介ページより最新情報や来場予約についてご確認ください。

※掲載のimage photoは、イメージであり実際の内容(もの)とは異なります。
※掲載の図面は計画段階のもので変更になる場合がございます。詳細は図面集をご参照ください。