ポートレートモード(縦置き)表示でご覧ください。

プラン Plan

バルコニー完成予想CG

Introduction

全邸南向き、3LDK(66m2台~83m2台)中心※1
プランバリエーション。
日常の家事動線を意識した空間を設計。

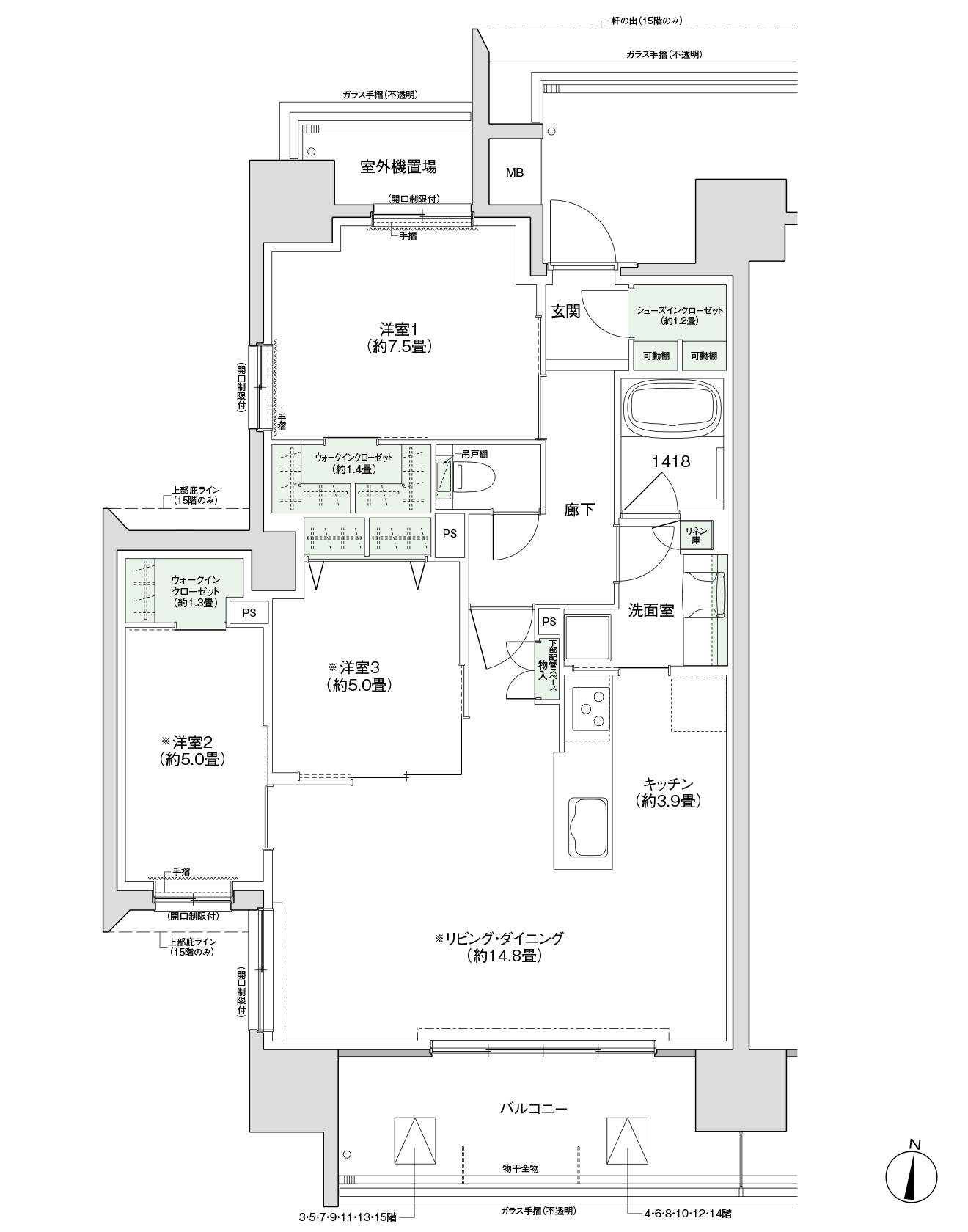
Pickup Plan

Etype

3LDK+2WIC+SIC

専有面積
83.46m2(約25.24坪)
バルコニー面積:10.64m2(約3.21坪)
  • 1
  • 2
  • 3
  • 3
  • 3
  • 4
  • 収納
  • WIC:ウォークインクローゼット
  • SIC:シューズインクローゼット

※2~6階「リビング・ダイニング」・「洋室3」は、建築基準法上の居室の要件を満たすために、床面すべてにおいて、50ルクス以上の照度を確保できる照明器具の設置が必要です。
※「洋室2」は、建築基準法上の居室の要件を満たすために、床面すべてにおいて、50ルクス以上の照度を確保できる照明器具の設置が必要です。

Point 1 キッチンと洗面室、
キッチンとダイニング、
家事動線に配慮した設計。

キッチンから洗面室・ダイニングへスムーズに。
家事ラク動線で時短を叶える2Way設計。

※掲載のイラストはイメージで、実物とは異なります。

家事動線イメージイラスト

Point 2 全タイプ洋室1には
空間を有効活用できる引き戸を採用。

引き戸を採用することにより、空間を有効活用できます。

Point 3 ウォークインクローゼットなど
豊富な収納スペースを確保。

たっぷりとしたスペースにより、季節ものの収納やスーツケースなど大型の荷物も収納可能です。

Point 4 リビングに隣接する洋室に
引き戸を採用。

引き戸の開閉により、独立した洋室としてもリビングの続き間としても使用することができます。

明るく開放感あふれる連窓サッシの採用。

視界をよりワイドにし、光を豊かに取り込むことのできる連窓を採用。(A1,A2,B1,B2タイプ)
厚い壁や柱に遮られることがなく、明るく開放感あふれる空間を演出します。

概念図

居室のデッドスペースを最小限に抑えたアウトポール設計。

柱を住戸の外側に出すアウトポール設計により、室内のコーナーがすっきり。
家具レイアウトのしやすさや、居室に広がりとゆとりを感じることができます。

※アウトポール設計はバルコニー側のみとなります。

概念図

Plan List

Panorama View

開放感のある全邸南向き

京橋川や河畔の桜並木、二葉山の緑をリビングの窓越しに望むことができます。
光と風を楽しむビューテラスに。日が暮れれば、広島駅界隈の煌めく夜景が目に飛びこんできます。

※開放感や眺望は階数と住戸タイプにより異なります。また、周辺の眺望および環境は今後変わる可能性があり、将来にわたって保証されるものではありません。

眺望写真(現地14階相当)

物件エントリーとモデルルーム見学までの流れ

「三菱地所のレジデンスクラブ」会員サイト内のMy Selectionにて限定情報を随時公開してまいります。

  1. 必要項目を入力して
    物件へエントリー。

  2. エントリー後に送付されるメールから「三菱地所のレジデンスクラブ」に新規登録を行う。(Machi Pass登録も行う)

    ※すでに「三菱地所のレジデンスクラブ」に登録済みの方は、メールからログインをお願いします。

  3. 「三菱地所のレジデンスクラブ」会員サイト内の「My Selection」の物件紹介ページより最新情報や来場予約についてご確認ください。

WIC: ウォークインクローゼット SIC: シューズインクローゼット ST:ストレージ(収納)
※1: 総戸数98戸中56戸
※掲載のバルコニー完成予想CGは、現地14階相当の眺望画像(2024年12月撮影)に加工を施し、計画段階の図面をもとに描き起こしたバルコニー完成予想CGを合成したもので、実際とは異なります。
※掲載の概念図はイメージです。実際とは形状等異なる場合がござます。
※掲載の眺望写真は現地14階相当より2026年1月に撮影したものです。また、眺望・周辺環境等は将来的に保証されるものではありません。
※掲載のイメージイラスト、image photoは、イメージであり実際の内容(もの)とは異なります。
※掲載の図面は計画段階のもので変更になる場合がございます。詳細は図面集をご参照ください。