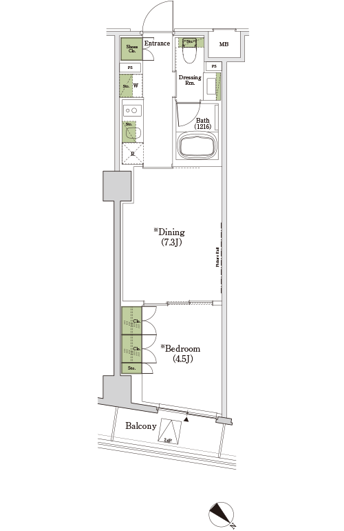
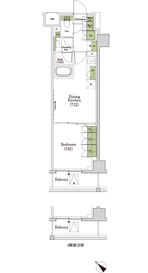
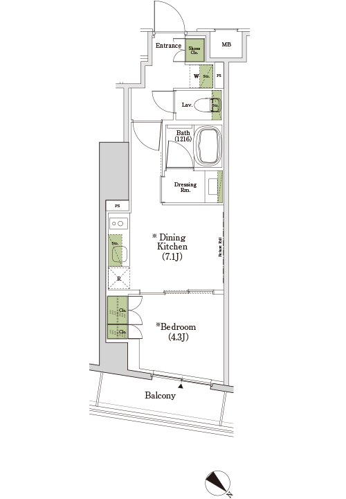
ROOM PLAN間取り
平面図
1DKタイプ詳細
![建築物省エネ法に基づく省エネ性能ラベル[エネルギー消費性能(6段階中):★4(太陽光発電(自家消費)分:★1 含む)、断熱性能(7段階中):5] ※ZEH水準 ※ネット・ゼロ・エネルギー ZEH-M Oriented](imgs/seinoulabel_01.jpg)
![東京都マンション環境性能表示[(各3段階中):建物の断熱性★3、設備の省エネ性★3、再エネ設備・電気★2、維持管理・劣化対策★3、みどり★1]](imgs/seinoulabel_02.png)
※掲載の「省エネ性能ラベル」は、住棟全体の性能を示すものであり、各住戸の性能を示すものではありません。
※掲載の「東京都マンション環境性能表示」の評価は、東京建築物環境計画書精度に基づく設計段階での評価であり、今後変更となる可能性があります。
※掲載の「東京都マンション環境性能表示」の評価は、東京建築物環境計画書精度に基づく設計段階での評価であり、今後変更となる可能性があります。