平面図
2LDKタイプ詳細
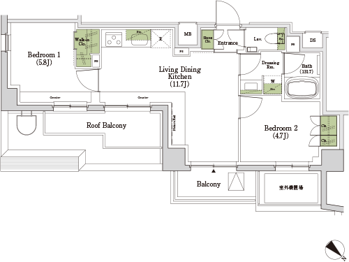
STYPE
専有面積
48.19m2(約14.57坪)2LDK バルコニー面積/3.72㎡(約1.12坪)
ルーフバルコニー面積/5.41㎡(約1.63坪)
48.19m2(約14.57坪)2LDK バルコニー面積/3.72㎡(約1.12坪)
ルーフバルコニー面積/5.41㎡(約1.63坪)
ルーフバルコニー付き
LDK11.7畳・洋室5.8畳、4.7畳
ウォークインクローゼット
窓際カウンター付き
=収納
※掲載の図面は計画段階のものであり、施工上の理由などで変更することがございます。
※掲載の図面は計画段階のものであり、施工上の理由などで変更することがございます。
ルーフバルコニー付き
LDK11.7畳・洋室5.8畳、4.7畳
ウォークインクローゼット
窓際カウンター付き
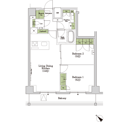
TTYPE
専有面積
48.30m2(約14.61坪)2LDK バルコニー面積/3.96㎡(約1.19坪)
48.30m2(約14.61坪)2LDK バルコニー面積/3.96㎡(約1.19坪)
LDK10.5畳・洋室5.7畳、4.0畳
食器洗浄機付キッチン
浴室1317サイズ
=収納
※掲載の図面は計画段階のものであり、施工上の理由などで変更することがございます。
※掲載の図面は計画段階のものであり、施工上の理由などで変更することがございます。
LDK10.5畳・洋室5.7畳、4.0畳
食器洗浄機付キッチン
浴室1317サイズ
UTYPE
専有面積
50.28m2(約15.20坪)2LDK バルコニー面積/8.59㎡(約2.59坪)
50.28m2(約15.20坪)2LDK バルコニー面積/8.59㎡(約2.59坪)
LDK11.5畳・洋室5.0畳、4.5畳
食器洗浄機・食器棚付き対面キッチン
洋室4.5畳にカウンター付き
浴室1317サイズ
=収納
※掲載の図面は計画段階のものであり、施工上の理由などで変更することがございます。
※掲載の図面は計画段階のものであり、施工上の理由などで変更することがございます。
LDK11.5畳・洋室5.0畳、4.5畳
食器洗浄機・食器棚付き対面キッチン
洋室4.5畳にカウンター付き
浴室1317サイズ
VTYPE
専有面積
51.88m2(約15.69坪)2LDK ルーフバルコニー面積/23.08㎡(約6.98坪)
51.88m2(約15.69坪)2LDK ルーフバルコニー面積/23.08㎡(約6.98坪)
ルーフバルコニー付き
LDK14.2畳・洋室6.0畳、4.0畳
カップボード・食器洗浄機付きキッチン
各洋室にウォークインクローゼット
=収納
※掲載の図面は計画段階のものであり、施工上の理由などで変更することがございます。
※掲載の図面は計画段階のものであり、施工上の理由などで変更することがございます。
ルーフバルコニー付き
LDK14.2畳・洋室6.0畳、4.0畳
カップボード・食器洗浄機付きキッチン
各洋室にウォークインクローゼット
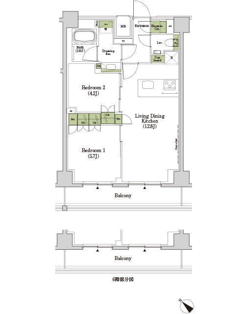
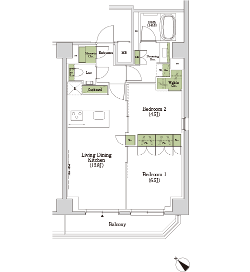
WTYPE
専有面積
52.27m2(約15.81坪)2LDK バルコニー面積/7.32㎡(約2.21坪)
52.27m2(約15.81坪)2LDK バルコニー面積/7.32㎡(約2.21坪)
LDK12.8畳・洋室5.7畳、4.2畳
食器洗浄機・食器棚付き対面キッチン
シューズインクローゼット
浴室1317サイズ
=収納
※掲載の図面は計画段階のものであり、施工上の理由などで変更することがございます。
※掲載の図面は計画段階のものであり、施工上の理由などで変更することがございます。
LDK12.8畳・洋室5.7畳、4.2畳
食器洗浄機・食器棚付き対面キッチン
シューズインクローゼット
浴室1317サイズ
YTYPE
専有面積
59.21m2(約17.91坪)2LDK バルコニー面積/3.40㎡(約1.02坪)
ルーフバルコニー面積/7.77㎡(約2.35坪)
59.21m2(約17.91坪)2LDK バルコニー面積/3.40㎡(約1.02坪)
ルーフバルコニー面積/7.77㎡(約2.35坪)
ルーフバルコニー付き
LDK13.5畳・洋室7.4畳、4.8畳
食器洗浄機・カウンター付キッチン
各洋室にウォークインクローゼット
=収納
※掲載の図面は計画段階のものであり、施工上の理由などで変更することがございます。
※掲載の図面は計画段階のものであり、施工上の理由などで変更することがございます。
ルーフバルコニー付き
LDK13.5畳・洋室7.4畳、4.8畳
食器洗浄機・カウンター付キッチン
各洋室にウォークインクローゼット
ZTYPE
専有面積
56.99m2(約17.23坪)2LDK バルコニー面積/8.52㎡(約2.57坪)
56.99m2(約17.23坪)2LDK バルコニー面積/8.52㎡(約2.57坪)
LDK13.6畳・洋室6.2畳、5.0畳
食器洗浄機・食器棚付き対面キッチン
シューズインクローゼット
浴室1418サイズ
=収納
※掲載の図面は計画段階のものであり、施工上の理由などで変更することがございます。
※掲載の図面は計画段階のものであり、施工上の理由などで変更することがございます。
LDK13.6畳・洋室6.2畳、5.0畳
食器洗浄機・食器棚付き対面キッチン
シューズインクローゼット
浴室1418サイズ
ZATYPE
専有面積
57.76m2(約17.47坪)2LDK バルコニー面積/6.69㎡(約2.02坪)
57.76m2(約17.47坪)2LDK バルコニー面積/6.69㎡(約2.02坪)
LDK12.8畳・洋室6.5畳、4.5畳
食器洗浄機・食器棚付き対面キッチン
シューズインクローゼット
ウォークインクローゼット
浴室1418サイズ
=収納
※掲載の図面は計画段階のものであり、施工上の理由などで変更することがございます。
※掲載の図面は計画段階のものであり、施工上の理由などで変更することがございます。
LDK12.8畳・洋室6.5畳、4.5畳
食器洗浄機・食器棚付き対面キッチン
シューズインクローゼット
ウォークインクローゼット
浴室1418サイズ
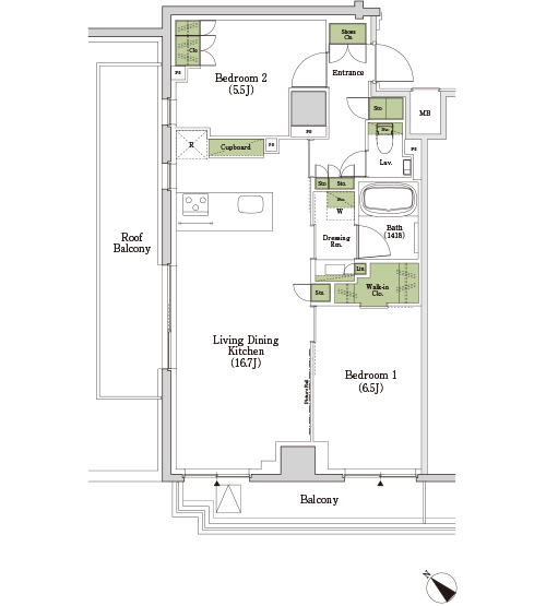
ZBTYPE
専有面積
63.16m2(約19.10坪)2LDK バルコニー面積/6.84㎡(約2.06坪)
ルーフバルコニー面積/12.62㎡(約3.81坪)
63.16m2(約19.10坪)2LDK バルコニー面積/6.84㎡(約2.06坪)
ルーフバルコニー面積/12.62㎡(約3.81坪)
ルーフバルコニー付き
LDK16.7畳・洋室6.5畳、5.5畳
食器洗浄機・食器棚付き対面キッチン
ウォークインクローゼット
浴室1418サイズ
=収納
※掲載の図面は計画段階のものであり、施工上の理由などで変更することがございます。
※掲載の図面は計画段階のものであり、施工上の理由などで変更することがございます。
ルーフバルコニー付き
LDK16.7畳・洋室6.5畳、5.5畳
食器洗浄機・食器棚付き対面キッチン
ウォークインクローゼット
浴室1418サイズ
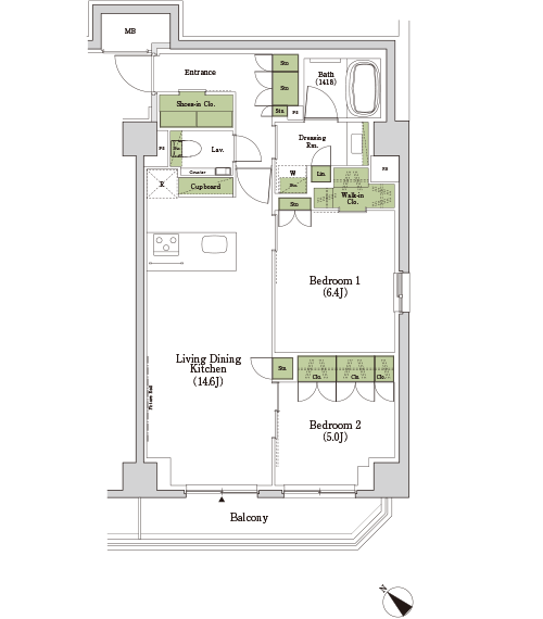
ZCTYPE
専有面積
64.23m2(約19.42坪)2LDK バルコニー面積/6.69㎡(約2.02坪)
64.23m2(約19.42坪)2LDK バルコニー面積/6.69㎡(約2.02坪)
LDK14.6畳・洋室6.4畳、5.0畳
食器洗浄機・食器棚付き対面キッチン
シューズインクローゼット
ウォークインクローゼット
浴室1418サイズ
=収納
※掲載の図面は計画段階のものであり、施工上の理由などで変更することがございます。
※掲載の図面は計画段階のものであり、施工上の理由などで変更することがございます。
LDK14.6畳・洋室6.4畳、5.0畳
食器洗浄機・食器棚付き対面キッチン
シューズインクローゼット
ウォークインクローゼット
浴室1418サイズ
![建築物省エネ法に基づく省エネ性能ラベル[エネルギー消費性能(6段階中):★4(太陽光発電(自家消費)分:★1 含む)、断熱性能(7段階中):5] ※ZEH水準 ※ネット・ゼロ・エネルギー ZEH-M Oriented](imgs/seinoulabel_01.jpg)
![東京都マンション環境性能表示[(各3段階中):建物の断熱性★3、設備の省エネ性★3、再エネ設備・電気★2、維持管理・劣化対策★3、みどり★1]](imgs/seinoulabel_02.png)
※掲載の「省エネ性能ラベル」は、住棟全体の性能を示すものであり、各住戸の性能を示すものではありません。
※掲載の「東京都マンション環境性能表示」の評価は、東京建築物環境計画書精度に基づく設計段階での評価であり、今後変更となる可能性があります。
※掲載の「東京都マンション環境性能表示」の評価は、東京建築物環境計画書精度に基づく設計段階での評価であり、今後変更となる可能性があります。