平面図
1LDK(+S)タイプ詳細
CTYPE
専有面積
30.18m2(約9.12坪)1LDK バルコニー面積/4.89㎡(約1.47坪)
30.18m2(約9.12坪)1LDK バルコニー面積/4.89㎡(約1.47坪)
LDK8.4畳・洋室3.7畳
シャワールーム
ウォークインクローゼット
=収納
※掲載の図面は計画段階のものであり、施工上の理由などで変更することがございます。
※掲載の図面は計画段階のものであり、施工上の理由などで変更することがございます。
LDK8.4畳・洋室3.7畳
シャワールーム
ウォークインクローゼット
ITYPE
専有面積
31.79m2(約9.61坪)1LDK バルコニー面積/3.97㎡(約1.20坪)
31.79m2(約9.61坪)1LDK バルコニー面積/3.97㎡(約1.20坪)
角住戸
LDK8.6畳・洋室5.0畳
バストイレ別
=収納
※掲載の図面は計画段階のものであり、施工上の理由などで変更することがございます。
※掲載の図面は計画段階のものであり、施工上の理由などで変更することがございます。
角住戸
LDK8.6畳・洋室5.0畳
バストイレ別
JTYPE
専有面積
32.09m2(約9.70坪)1LDK バルコニー面積/3.03㎡(約0.91坪)
32.09m2(約9.70坪)1LDK バルコニー面積/3.03㎡(約0.91坪)
LDK8.0畳・洋室4.4畳
シューズクローゼット+カウンター
バストイレ別
=収納
※掲載の図面は計画段階のものであり、施工上の理由などで変更することがございます。
※掲載の図面は計画段階のものであり、施工上の理由などで変更することがございます。
LDK8.0畳・洋室4.4畳
シューズクローゼット+カウンター
バストイレ別
KTYPE
専有面積
32.25m2(約9.75坪)1LDK バルコニー面積/3.97㎡(約1.20坪)
32.25m2(約9.75坪)1LDK バルコニー面積/3.97㎡(約1.20坪)
角住戸
LDK8.6畳・洋室5.2畳
バストイレ別
=収納
※掲載の図面は計画段階のものであり、施工上の理由などで変更することがございます。
※掲載の図面は計画段階のものであり、施工上の理由などで変更することがございます。
角住戸
LDK8.6畳・洋室5.2畳
バストイレ別
MTYPE
専有面積
33.57m2(約10.15坪)1LDK バルコニー面積/3.70㎡(約1.11坪)
33.57m2(約10.15坪)1LDK バルコニー面積/3.70㎡(約1.11坪)
LDK8.7畳・洋室4.5畳
カウンター付き収納スペース
バストイレ別
=収納
※掲載の図面は計画段階のものであり、施工上の理由などで変更することがございます。
※102号室の「Living Dining Kitchen・Bedroom」は建築基準法の居室要件を満たすために、床面すべてにおいて50ルクス以上の照度を確保できる照明器具を設置しています。
※掲載の図面は計画段階のものであり、施工上の理由などで変更することがございます。
※102号室の「Living Dining Kitchen・Bedroom」は建築基準法の居室要件を満たすために、床面すべてにおいて50ルクス以上の照度を確保できる照明器具を設置しています。
LDK8.7畳・洋室4.5畳
カウンター付き収納スペース
バストイレ別
NTYPE
専有面積
38.37m2(約11.60坪)1LDK バルコニー面積/2.51㎡(約0.75坪)
38.37m2(約11.60坪)1LDK バルコニー面積/2.51㎡(約0.75坪)
角住戸
LDK9.5畳・洋室5.4畳
ウォークインクローゼット
バス・トイレ別
=収納
※掲載の図面は計画段階のものであり、施工上の理由などで変更することがございます。
※掲載の図面は計画段階のものであり、施工上の理由などで変更することがございます。
角住戸
LDK9.5畳・洋室5.4畳
ウォークインクローゼット
バス・トイレ別
OTYPE
専有面積
44.26m2(約13.38坪)1LDK バルコニー面積/3.84㎡(約1.16坪)
プライベートテラス面積/9.68㎡(約2.92坪)
44.26m2(約13.38坪)1LDK バルコニー面積/3.84㎡(約1.16坪)
プライベートテラス面積/9.68㎡(約2.92坪)
プライベートテラス付き
LDK11.0畳・洋室5.8畳
シューズクローゼット+玄関収納
=収納
※掲載の図面は計画段階のものであり、施工上の理由などで変更することがございます。
※「Living Dining Kitchen・Bedroom」は建築基準法の居室要件を満たすために、床面すべてにおいて50ルクス以上の照度を確保できる照明器具を設置しています。
※掲載の図面は計画段階のものであり、施工上の理由などで変更することがございます。
※「Living Dining Kitchen・Bedroom」は建築基準法の居室要件を満たすために、床面すべてにおいて50ルクス以上の照度を確保できる照明器具を設置しています。
プライベートテラス付き
LDK11.0畳・洋室5.8畳
シューズクローゼット+玄関収納
PTYPE
専有面積
44.98m2(約13.60坪)1LDK+S バルコニー面積/3.97㎡(約1.20坪)
44.98m2(約13.60坪)1LDK+S バルコニー面積/3.97㎡(約1.20坪)
LDK10.2畳・洋室5.3畳
サービスルーム3.5畳
浴室1317サイズ
ウォークインクローゼット
=収納
※掲載の図面は計画段階のものであり、施工上の理由などで変更することがございます。
※掲載の図面は計画段階のものであり、施工上の理由などで変更することがございます。
LDK10.2畳・洋室5.3畳
サービスルーム3.5畳
浴室1317サイズ
ウォークインクローゼット
QTYPE
専有面積
45.77m2(約13.84坪)1LDK ルーフバルコニー面積/15.94㎡(約4.82坪)
45.77m2(約13.84坪)1LDK ルーフバルコニー面積/15.94㎡(約4.82坪)
ルーフバルコニー付き
LDK13.0畳・洋室5.5畳
シューズインクローゼット
=収納
※掲載の図面は計画段階のものであり、施工上の理由などで変更することがございます。
※掲載の図面は計画段階のものであり、施工上の理由などで変更することがございます。
ルーフバルコニー付き
LDK13.0畳・洋室5.5畳
シューズインクローゼット
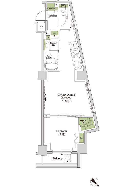
RTYPE
専有面積
47.67m2(約14.42坪)1LDK バルコニー面積/3.84㎡(約1.16坪)
47.67m2(約14.42坪)1LDK バルコニー面積/3.84㎡(約1.16坪)
角住戸
LDK14.3畳・洋室6.2畳
ウォークインクローゼット
シューズインクローゼット
=収納
※掲載の図面は計画段階のものであり、施工上の理由などで変更することがございます。
※掲載の図面は計画段階のものであり、施工上の理由などで変更することがございます。
角住戸
LDK14.3畳・洋室6.2畳
ウォークインクローゼット
シューズインクローゼット
XTYPE
専有面積
53.79m2(約16.27坪)1LDK バルコニー面積/3.96㎡(約1.19坪)
53.79m2(約16.27坪)1LDK バルコニー面積/3.96㎡(約1.19坪)
LDK13.6畳・洋室8.1畳
食器洗浄機・食器棚付き対面キッチン
ウォークインクローゼット
シューズインクローゼット
浴室1418サイズ
=収納
※掲載の図面は計画段階のものであり、施工上の理由などで変更することがございます。
※掲載の図面は計画段階のものであり、施工上の理由などで変更することがございます。
LDK13.6畳・洋室8.1畳
食器洗浄機・食器棚付き対面キッチン
ウォークインクローゼット
シューズインクローゼット
浴室1418サイズ
![建築物省エネ法に基づく省エネ性能ラベル[エネルギー消費性能(6段階中):★4(太陽光発電(自家消費)分:★1 含む)、断熱性能(7段階中):5] ※ZEH水準 ※ネット・ゼロ・エネルギー ZEH-M Oriented](imgs/seinoulabel_01.jpg)
![東京都マンション環境性能表示[(各3段階中):建物の断熱性★3、設備の省エネ性★3、再エネ設備・電気★2、維持管理・劣化対策★3、みどり★1]](imgs/seinoulabel_02.png)
※掲載の「省エネ性能ラベル」は、住棟全体の性能を示すものであり、各住戸の性能を示すものではありません。
※掲載の「東京都マンション環境性能表示」の評価は、東京建築物環境計画書精度に基づく設計段階での評価であり、今後変更となる可能性があります。
※掲載の「東京都マンション環境性能表示」の評価は、東京建築物環境計画書精度に基づく設計段階での評価であり、今後変更となる可能性があります。